Description

In a great location opposite the Westerpark, we offer this apartment with two bedrooms and a garden!

The property has a practical and thoughtful layout, a lovely east-facing garden, and an open-plan kitchen. This apartment is the ideal place to live in the popular Bos en Lommer neighborhood.

LAYOUT
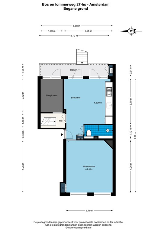
A staircase from the street leads to the front door on the bel-etage, where you immediately enter the apartment.
At the front, facing west, is the living room, featuring large windows that let in plenty of natural light. The space is finished with neat details that give it a warm atmosphere, while offering views of the Bos en Lommerweg.
At the rear of the apartment is the open-plan kitchen, fully equipped with a gas hob, combi oven, dishwasher, extractor hood, and refrigerator. From the kitchen, an additional room can be accessed, suitable as a home office or bedroom. The kitchen also provides access to the rear balcony, which has a staircase leading down to the garden.
The bathroom is centrally located between the various rooms and includes a walk-in shower and wall-mounted toilet. An internal staircase from the bel-etage leads to the storage room on the ground floor (approx. 19 m²), currently used as a bedroom with an adjoining side room that can serve as a practical workspace. From here, you can also access the delightful garden. The entire home features a solid oak floor.

LOCATION
This property is situated in a vibrant part of Bos en Lommer, where everything is within easy reach: from supermarkets and cozy coffee spots to restaurants and shops. Both Erasmuspark and Westerpark are within walking distance, as is the creative hotspot Westergas. Nearby, you’ll find popular spots such as Fuku Coffee (one of the city’s highest-rated coffee places), Farine (famous for breakfast and French pastries), the No Man’s Art Gallery, and the sunny terrace of Terrasmus.
And of course, let’s not forget Westerpark!
The location is also very well connected. Within 15 minutes you can reach Amsterdam Central by tram, bus, or bike. The A10 ring road is close by, making the property easily accessible by car as well.

DETAILS
•	Approx. 63 m², including 19 m² of storage space on the ground floor, currently in use as living space;
•	NEN2580/BBMI measurement report available;
•	Balcony and garden facing east;
•	Situated on municipal leasehold land; the current continuous period runs until 15-06-2058 and has been bought off;
•	Energy label C;
•	The Homeowners’ Association is in good financial condition, active, and professionally managed;
•	Monthly service costs: €93.53;
•	Transfer in consultation, can be quick.

STREET NAME
The street name Bos en Lommerweg in Amsterdam refers to the historic area of Bos en Lommer, originally a polder and later a village located west of Amsterdam.

This non-binding sales information has been compiled with the greatest care by our office on the basis of the information provided to us by the seller. Therefore, we cannot provide any guarantees, nor can we in any way accept any liability for these data. We have had the NEN 2580 measurement report drawn up by an external party and therefore we cannot provide any guarantees or accept any liability for these data. We advise potential buyers to do their own research and to hire a professional agent, member of a branch organisation.

Features